Varesine voleva dire luna park – ed è stata proprio questa la risposta al workshop di progetto svolto durante il corso di alta specializzazione in Hotel Design Solution.
- Location: Milano – Italy
- Project year: October 2019
- Type: Workshop – High specialization classes – Hotel Design Solutions
- Designers: Arch. C. Armando – Arch. S. Gallucci – Arch. A. Dezio – Arch. N. Aminfakhr – Interior Designer M. De Tomi
Situato nei primi 16 piani della Torre Diamante, all’angolo Nord-Est del nuovo polo attrattivo di Porta Nuova a Milano, il FUNFAIR HOTEL, si rifà al genius loci dell’area, che ospitò per 25 anni il Luna Park “Le Varesine”.
Fin dalla bussola d’ingresso, il suono del carillon accompagnerà il cliente nel magico mondo del Funfair Hotel. Le luci, gli specchi e il tema del labirinto, declinati in forme diverse faranno il resto!

Molte sono le “attrazioni” che si possono trovare all’interno, dislocate ai due piani “pubblici”:
Il caravan e la distesa di luci caratterizzano l’atmosfera del bistrot, nuovo punto di aggregazione, non solo per gli ospiti interni, ma per il quartiere stesso.

Una scalinata in ferro, a memoria di quella che portava all’acropoli del divertimento, conduce dal piano terra alla SPA al piano superiore. Posizionata di fronte alla grande vetrata prospiciente una delle vie principali, definisce il nuovo status-symbol di chi la percorre.

Al termine una mirror room puntinata di infiniti micro LED immerge l’ospite in un’atmosfera magica e surreale prima di condurlo al Wellness Park, dove il concetto di relax è connesso all’esperienza del vino combinato ai trattamenti termali.
Completano il piano una piccola palestra – sala giochi, un’area co-working e un ristorante.

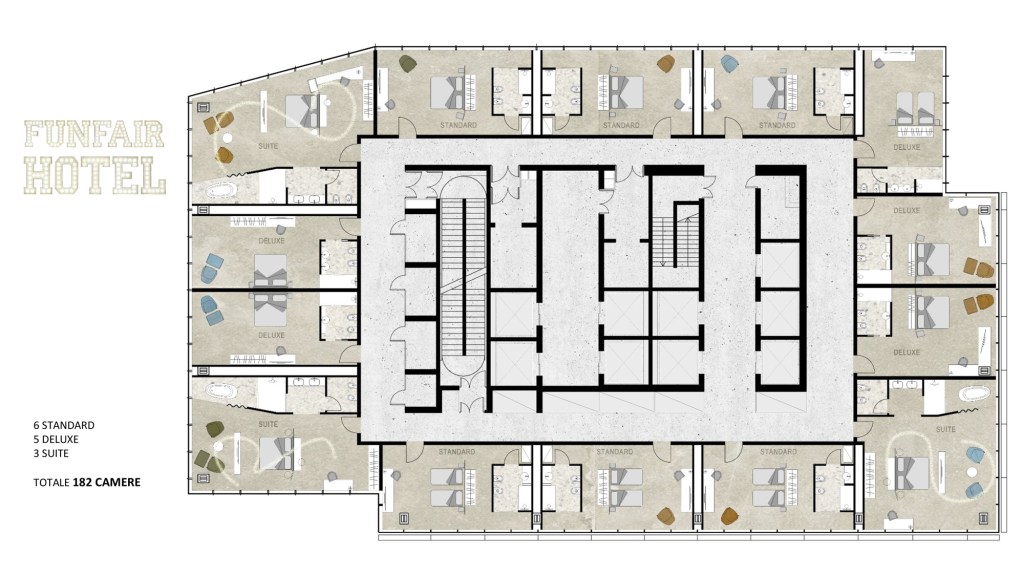
Proseguendo in altezza incontriamo le camere private, suddivise per tipologie. Qui il tema del Luna Park viene declinato in modo creativo attraverso forme, materiali e arredi appartenenti a quel periodo storico.


Lecca – Lecca giganti fungono da separet tra il letto e il guardaroba, una parete di specchi definisce la sala da bagno, mentre un giocoso binario sul soffitto consente di muovere la luce principale nella posizione più congeniale all’ospite.
“ Facciamolo un ultimo giro di giostra, cosí da guardare dall’alto tutte le nostre sterili corse e le nostre piccolezze e sfiorare le nuvole ”









