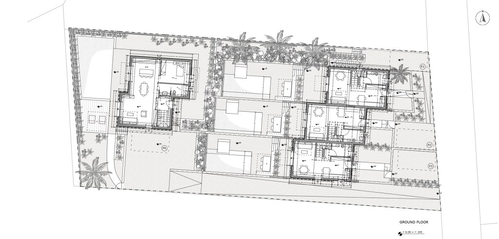
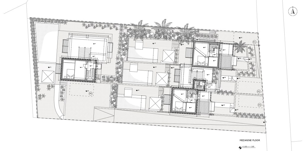
All’interno del tradizionale villaggio di Gallos, vicino alla città di Rethymno, sull’isola di Creta, le quattro ville con piscina privata, seguono l’orografia naturale del terreno e prevedono un uso sia turistico sia residenziale.
- Location: Rethymno – Greece
- Project year: April 2021
- Architectural plan: Arch. C. Armando – Arch. V. Spinoni
Inside the traditional village of Gallos, near the town of Rethymno, on the island of Crete, four villas with private pools for both touristic and residential use are designed, following the natural orography of the ground.




L’obiettivo principale è stato quello di utilizzare i materiali tradizionali – pietra, intonaco e legno – e le forme dell’architettura tradizionale cretese – piccoli volumi, tetti a falde con tegole misti a coperture piane e aperture verticali – in un linguaggio contemporaneo.
The main aim was to use traditional materials – stone, plaster, wood – and the shapes of Cretan traditional architecture – small volumes, pitched ceramic roof mixed with flat ones, vertical openings – in a contemporary language.

Gli edifici presentano un articolato prospetto verso la via pubblica (Est): piccoli volumi connessi tra loro tramite differenti livelli ad evocare un tradizionale agglomerato di case, mentre il lato Ovest, privato e affacciato sulla piscina, è caratterizzato da forme più semplici e lineari, con aperture di dimensioni maggiori pur mantenendo un rapporto verticale.

The houses show an articulated elevation towards the public street at East: smaller volumes connected each other, with different levels to look like a traditional agglomerate of houses, while the Westside, more private and overlooking the swimming pool, is characterized by simpler and linear shapes, with bigger openings, however keeping a vertical ratio.

L’intero complesso sarà circondato da aree verdi con piante di alto fusto sul lato Nord al fine di ottenere un’oasi privata protetta dai vicini. Lungo il confine meridionale sarà invece prevista una strada privata per consentire l’accesso alla villa inferiore. Verrà infine previsto un parcheggio sul lato est, lungo la strada pubblica e accanto alla casa isolata.

The entire complex will be surrounded by green areas with bigger plants on the Northside to create a private oasis protected by the neighbours. On the southern border is going to be a private street to permit access to the lower villa. As well a parking area will be placed on the Eastside, along the public street and next to the isolated house.








