Il Villaggio, un vero e proprio TETRIS, un complesso gioco di incastri, dove spazi aperti e chiusi, terrazze e giardini, rampe e scale, dislivelli e piani trovano la loro soluzione e definizione.
- Location: Skiathos – Greece
- Project year: February 2023
- Architectural Design: Arch. Chiara Armando for POLYERGO
The Village, a real TETRIS, a complex game of interlocking, where open and closed spaces, terraces and gardens, ramps and stairs, unevenness and floors find their solution and definition.

La proprietà si trova sul lato nordorientale del centro abitato di Skiathos, capoluogo dell’omonima isola greca. Un terreno dalla forte pendenza delimitato da due strade, a Est ed a Ovest, sopra e sotto.





The property is located on the North- East side of the town of Skiathos. A land with a strong inclination bordered by two streets, On the East and on the West side, above and below.
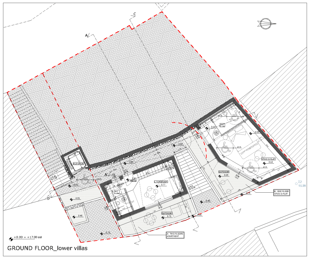
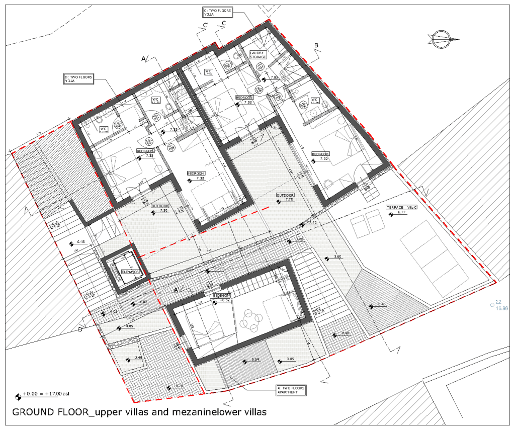
Presenta ora un salto di livello definito da un muretto che verrà mantenuto e diventerà il fulcro del progetto: sui due terrazzamenti verranno collocate 4 abitazioni ad uso turistico e residenziale interconnesse tra loro.



It presents now 2 height levels that are going to be kept and became the fulcrum of the project: 4 houses for touristic and residential use interconnected each other are going to be placed on those.

Nonostante il lotto sia contenuto nel nel perimetro della città, l’intorno è per lo più definito da costruzioni degli anni ’70, quindi il nuovo intento progettuale è quello di utilizzare un linguaggio contemporaneo con un occhio alla tradizione e a quelli che possono essere identificati come gli archetipi del luogo.
Although it is included in the perimeter of the town the built environment around is mostly defined by constructions from the’70, so the new design intent is to use a contemporary language with an eye to tradition and those that can be identified as the archetypes of the place.

Skiathos Town 



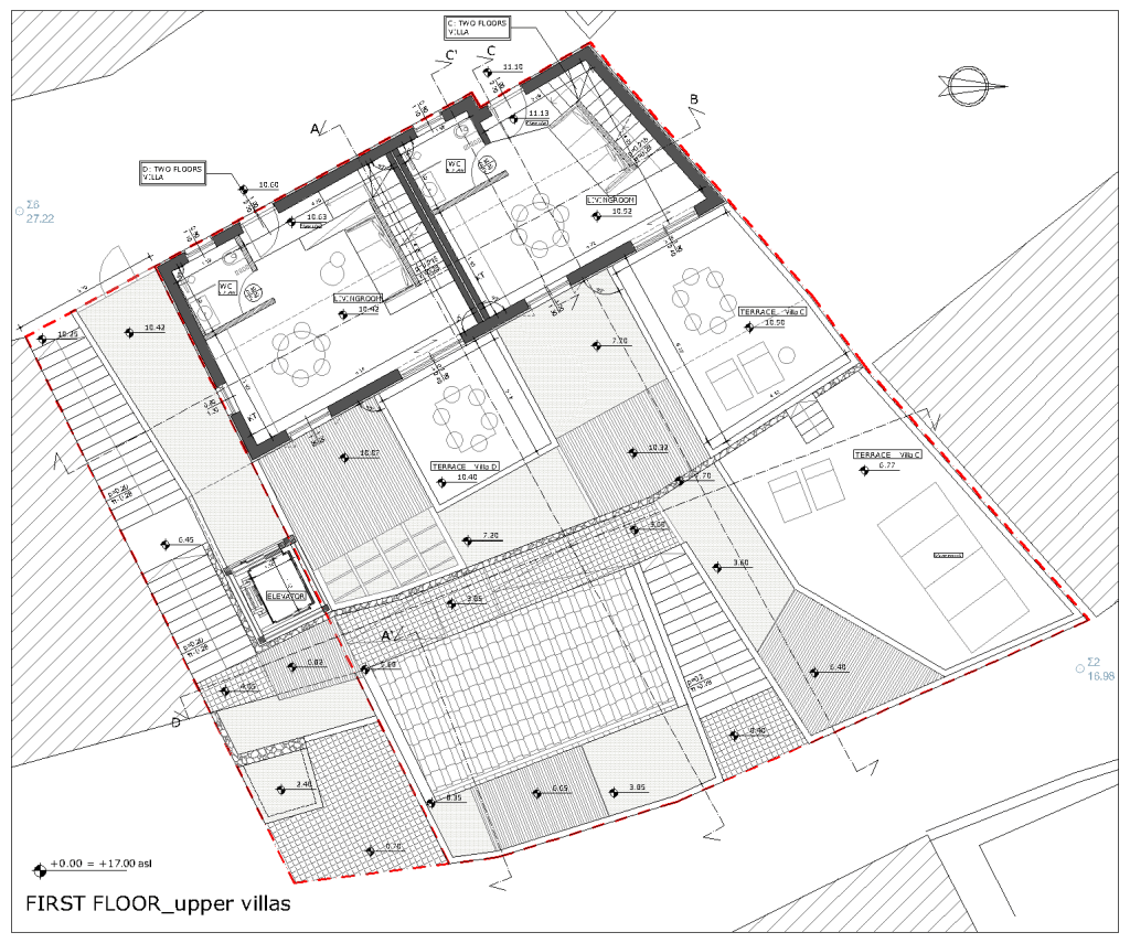
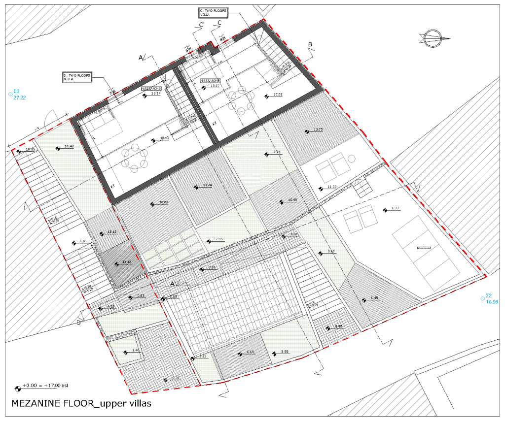
Pur verificando i canoni richiesti di superfici, altezze e distanze, predilige uno sviluppo orizzontale piuttosto che verticale: un sistema complesso di volumi, terrazzi, pergolati e giardini interconnessi e uniti da due collegamenti verticali (scale e ascensore) che richiamano così gli scorci visibili nella parte più antica della città.
While verifying the standards of surfaces, heights and distances, it prefers a horizontal development rather than a vertical one: a complex system of interconnected volumes, terraces, pergolas and gardens and joined by two vertical connections (stairs and elevator) recalling in this way the glimpses visible in older part of the town.

Verrà mantenuto il doppio accesso al terreno dalle 2 strade, superiore ed inferiore, supportati da un percorso pedonale che attraversa la proprietà e da un ascensore che consentirà anche alle persone con disabilità di raggiungere il livello superiore e medio dove si trovano gli ingressi alle case.


The double access to the land from the 2 streets, top and bottom, are going to be maintained, supported by a pedestrian path crossing the property and an elevator letting also the people with disability to reach the upper and medium level where the entrances to the houses are located.

Dal punto di vista stilistico gli edifici presentano una copertura in tegole ceramiche con colmo parallelo alla costa (come la maggior parte delle costruzioni esistenti) e grandi terrazzi al livello intermedio accessibili dal piano superiore, adibiti al leisure o per ospitare i pannelli solari, senza compromettere così l’estetica generale, ma garantendone il corretto orientamento verso sud. L’ambiente è un requisito molto importante di cui prendersi cura.



From stylistic point of view the buildings presents ceramic tiles roof with ridge parallel to the coast (like the majority of the existing constructions) and middle level terraces accessible from the higher floor, used for leisure and to host solar panels without compromising the general aesthetic. The environment is a very important requirement to care about nowadays that we have to face strong climate changes. In this way they are not going to be visible from the streets, but they have the proper orientation towards the South.

Le facciate saranno intonacate con texture diverse per sottolineare la diversa destinazione d’uso del livello inferiore adibito a garage e locale tecnico. Mentre il muro di contenimento sarà consolidato mantenendo la pietra pietra a vista. Anche sul lato sud del terreno la parete rocciosa naturale sarà preservata, stabilizzata e adattata al nuovo design e alle nuove funzioni.
The façades are going to be plastered with different textures to emphasize the difference of use for the lower level (garage and storage). While the containment wall will be replaced with stone finishing like the existing one. As well on the South side of the land the natural rock wall will be preserved, stabilized and adapted to the new design and functions.
